
面 積 | 130㎡
平面分析
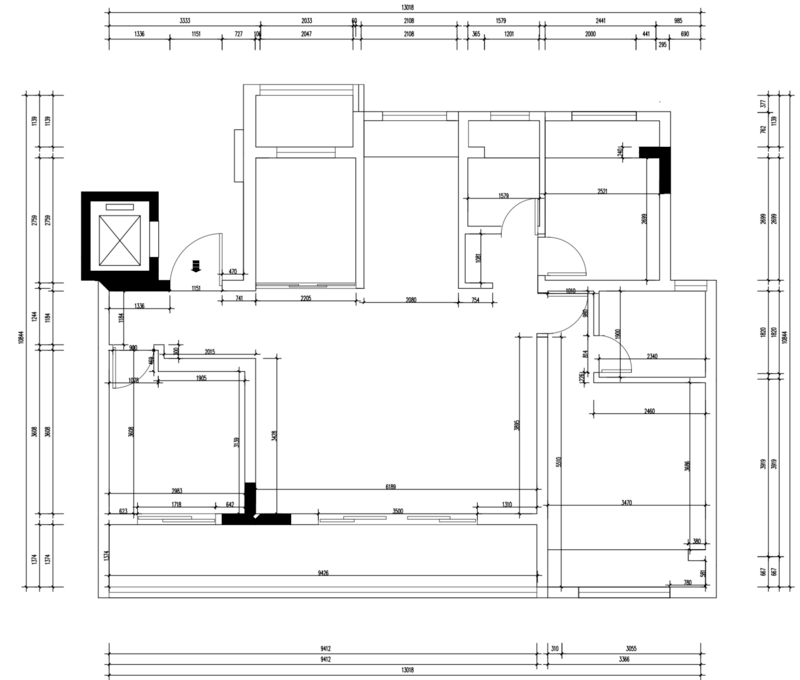
● 原始平面 ●
戶型 :四室兩廳兩衛
優點:
1、獨立門廳,有預留較大鞋柜位置;
2、客餐廳開間6.2M空間視線開闊;
3、9.3M超長陽臺,活動區域充足;
4、戶型方正 南北通透。
缺點:
書房區域需合理規劃,充足利用。
● 平面方案 Ⅰ ●
設計思路:
1、入戶門廳增加鞋帽柜,與餐邊柜相連,整體性更強;
2、客餐廳一體式,選擇三人位沙發搭配邊椅,更加靈活;以沙發作為軟隔斷,餐廳根據家庭需求選擇多人位;
3、保留三房,主臥作套房設計,其余兩間根據需求進行定義規劃;靠近廚房的房間較小,可以作為多功能書房使用。
● 平面方案 Ⅱ ●

設計思路:
1、將客餐廳和陽臺打通,擴大客餐廳的可利用空間;
2、狹長的陽臺可以用作休閑和洗衣晾曬,如果喜歡飲茶喝酒的業主也可以增加一個小吧臺,非常的愜意。
軟裝意向分析
● 玄關 ●

玄關處的裝修要集美觀度與實用度為一體,鞋柜做到頂設計,***大程度地滿足鞋子收納需求,鞋柜底部留空,方便日常換鞋取鞋,玄關處采光度較弱,在鞋柜底部和留空處設計好燈帶,增加玄關處的采光照明。
● 客餐廳 ●


客廳的設計以簡約為主,整體色系不失現代風韻,選用巖板做電視背景墻設計,內嵌電視機,很好的隱藏了電視的繁瑣線路,提升客廳的美觀度,背景墻下方留空,用于壁爐的安裝和裝飾畫的擺放,電視收納柜來增加客廳中的收納面積;
島臺的存在連接了餐廳和廚房,讓廚房不在是一個人的做飯空間,讓餐桌不再只是一個吃飯的地方,島臺集收納、料理、用餐與日常休閑和交流情感于一體,讓整個家庭氛圍更加的和諧。
● 主臥 ●
主臥面積大,擁有獨立的衣帽間和衛生間,能滿足業主夫婦的需求,并能充分保護主人的空間隱私,主臥中的衣帽間集梳妝、打扮為一體,幸福感大大提升,通過移門進入衣帽間,空間隱私性更好,多種功能整合到一個空間,提高了空間利用率,主臥套房的相對獨立性,也是品質生活的象征。
● 次臥 ●
次臥采用榻榻米的形式,才能***大化的利用空間,充分滿足居住睡眠,學習休閑,和收納等多重功能。
● 兒童房 ●
兒童房不僅僅是兒童睡覺的地方,更是一個學習成長空間,因此也需要承擔更多的功能,合理的規劃好空間布局,采用明亮度高的色彩,活潑大膽的配色,給孩子創造一定的想象空間,放置一些玩偶可以對孩子的成長和睡眠有幫助,也會是孩子的一個傾訴玩伴。