
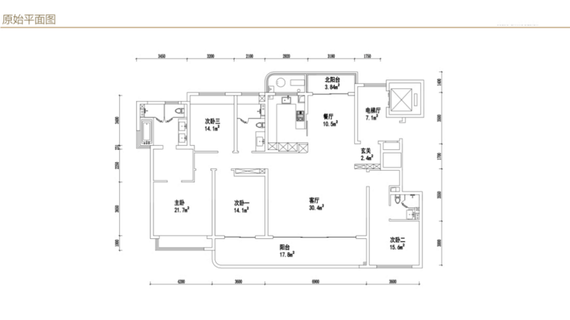
戶型 | 208m2
項目空間分析

戶型 :四室兩廳三衛一廚
優點 :
1、門廳有儲物柜,滿足基礎收納需求;
2、整體區域空間方正,南北通透,采光和通風都比較好;
3、三居室朝南,空間比例適中。
缺點 :
1、門口儲物柜功能單一,儲物柜深度較窄;
2、收納空間不足。
軟裝方案分析

門廳入戶增加玄關儲物柜,解決換鞋、儲物、掛衣的問題??蛷d增加功能性的選擇,以沙發為隔斷,增加開放式書房,選擇整墻的收納架,再配上一張自帶高級感的書桌,輕松營造出有品位的學習工作環境。也可以當作茶室來使用,隨時改變空間性質。
廚房做半開放式,用折疊門進行區別,打開門時整體廚房、餐廳,放眼望去,整個空間開闊明亮,使得空間的氣質一下子就提升起來。
因為過道比較長,所以為了增加儲物,做嵌入式收納柜,不影響來回走動,也能將物品輕松“隱藏”。
主臥做套房設計,作為業主的私人活動空間,起居打扮在這里都能完成。另外三間臥室作為兒童房、長輩房和客房,房間以簡約為主,按照房間定性進行規劃。
軟裝設計意向

現代輕奢風
是一種生活態度,著力于表現簡約、舒適、低調而內斂的生活品質,同時又不失高貴與奢華。所謂輕奢主義,顧名思義,就是“輕度的***”,也是讓低調的生活更富內涵。
· 電梯廳 ·

鞋柜 做到頂設計,到頂的空間可以放置不常穿的鞋子或鞋盒,可以增加很多的收納空間,鞋柜高柜中間可以留空,臺面可以擺放鑰匙等小物品,臺面下方設計小抽屜,可以放置雨傘或購物袋,出門方便拿取。
換鞋凳 需要注意選擇的家具顏色風格應當與整體環境保持一致,換鞋凳下方可以設計為物品收納的空間,主要收納拖鞋、鞋刷或其他換鞋時需要的物品,因為這些是日常頻繁使用到的物品,宜采用明格存放;也可以以卡座的形式設計,高度根據身高和用物習慣去選擇。
· 客廳 ·


在客廳設計 閱讀區 或者開放式書房一方面是對客廳多功能的打造利用,節約空間;另一方面也可彰顯主人的書香氣韻,有利于培養良好的家庭共讀氛圍。
用沙發做隔斷,分隔出兩個區域,沙發后是開放式書房,雙人辦公桌設計,不管是夫妻辦公還是陪伴孩子學習,都能滿足。同時利用一面墻體做滿墻書柜,滿足收納或裝飾性物品擺放。
· 餐廳 ·


在餐桌旁增加一個餐邊柜用來 收納 餐廳中雜亂的物品,收納能力完完全全大大提升,緩解了擁擠廚房的壓力。餐邊柜開放式和封閉式相結合,開放式可以放廚房里容納不下的電器類,比如壁掛式飲水機、微波爐、電飯煲、烤箱等;封閉式柜子則收納不常用物品。
除了收納,餐邊柜還有一個重要作用就是增加空間 顏值 。多花點心思設計餐邊柜,可以起到錦上添花的效果,增添一些玻璃門或者開放式隔間設計,擺放上葡萄酒和裝飾品,讓單調的餐廳墻面變得有趣生動。
· 主臥 ·


主臥擺放斗柜兼梳妝臺功能,由 步入式衣帽間 免除衛生間對著臥室的尷尬,打造兩排頂天立地大衣柜,鏡面柜門既可當穿衣鏡使用,又能擴大視覺空間。
主衛雙臺盆設計能夠提高生活效率,交付時的成品浴缸滿足業主泡澡需求,淋浴區與坐便區均采用玻璃隔斷,讓光線和視覺更加通透。
· 兒童房 ·


在色彩搭配上,使用 鮮艷明快的色彩 ,不僅可以使兒童保持活潑積極的心理狀態和愉悅的心境。而且還能改善室內亮度,造成明朗親切的室內環境,處在其中,孩子能產生安全感和歸屬感。
家具宜少而精,給活潑好動的孩子留出更多的活動空間??梢远喙δ芙M合一體的家具。同時考慮到孩子們喜歡變化的特點,家具宜選擇易移動、組合性高的,方便他們隨時重新調整空間,有助于增加孩子想象的空間。
· 次臥 ·


如果客臥長期有人借住或作為 老人房 使用,應選擇舒適體驗度更高的床+定制一體柜,輕松滿足坐,臥,收納衣物,學習等功能。定制一體柜中增大開放格的區域,讓物品隨手拿取更便捷,同時還能增加空間的通透感,讓小空間做滿柜子也不顯擁擠。
· 衣帽間 ·


衣帽間設計的***法則就是要有良好的收納功能。要明確地劃分好 掛衣區、疊放區、鞋包區 等不同區域,在足夠寬的狹長形的空間,衣帽間可以設計成平行而立的二字型,不僅可以***大化地利用空間,還可以保證空間的通透性。
除此之外,開放式衣帽間較為省地兒,而且由于衣柜沒有柜門,可以一目了然,拿取衣物比較方便,但是沒有柜門衣服很容易就會落灰,所以可以選用玻璃的推拉門或者平開門。
· 休閑陽臺 ·


休閑陽臺可以打造為一個 花園 ,讓家里充滿生機,如果不喜歡家里的花太多,擺放的滿滿當當,則可以挑選鐘愛的幾盆,就已經讓人眼前一亮了;或者在陽臺加一個書架,擺上喜歡的書,坐在小吧臺上在生機盎然的小花園里,暢游于知識的海洋。
· 生活陽臺 ·

在生活陽臺上設計洗衣池,可以選一體式臺盆,帶三面擋水。遵循上烘下洗的原則,衣服拿出來就可以穿,減少晾曬時間。轉角的空間剛好收納家政工具,適當利用洞洞板進行收納,更加整潔。